Україна, 49038, м. Дніпро, вул. Князя Ярослава Мудрого, 68

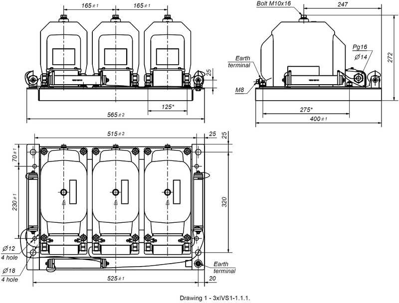
3xIVS1(F)

Трифазні антирезонансні групи однофазних трансформаторів напруги 3хIVS1…, 3хIVS1F…, є групою однофазних уземлюваних трансформаторів конструктивно закріплених на монолітній рамі.
Вироби призначені для передачі сигналів вимірювальної інформації вимірювальним приладам, пристроям захисту та управління, та для ізолювання кіл вторинних з’єднань від високої напруги в
комплектних електричних приладах (КРП, КРПЗ, КЗО) змінного струму частотою 50 Гц.

Трансформатори призначені для експлуатації в  приміщеннях, в яких коливання температури і вологості повітря не суттєво відрізняється від коливань на відкритому повітрі, а також в середині комплектних виробів призначених для експлуатації на відкритому повітрі за умови відсутності прямого впливу сонячного випромінювання та атмосферних опадів, в наступних умовах:

- висота над рівнем моря − не більше 1000 м;

- відносна вологість повітря не більше 98 % при 30 °С;

- верхнє робоче значення температури, навколишнього повітря − плюс 50 °С;

- нижнє робоче значення температури навколишнього повітря − мінус 45 °С;

- навколишнє середовище - вибухобезпечне, яке не містить пилу, хімічно активних газів і пари в
концентраціях, що руйнують покриття металів та ізоляцію;

- положення трансформаторів в просторі - будь-яке.

Клас нагрівостійкості ізоляції – В по ДСТУ EN 61869-1:2017.

Клас займистості трансформаторів відповідає групі НВ40 за ДСТУ EN 60695-11-10.

Однофазні трансформатори трифазної групи відповідають вимогам ДСТУ EN 61869-1:2017, ДСТУ EN 61869-3:2017, ГОСТ 1983-2015.

Трифазні антирезонансні групи однофазних трансформаторів напруги 3хIVS1…, 3хIVS1F…, є групою однофазних уземлюваних трансформаторів конструктивно закріплених на монолітній рамі.
Вироби призначені для передачі сигналів вимірювальної інформації вимірювальним приладам, пристроям захисту та управління, та для ізолювання кіл вторинних з’єднань від високої напруги в
комплектних електричних приладах (КРП, КРПЗ, КЗО) змінного струму частотою 50 Гц.

Трансформатори призначені для експлуатації в  приміщеннях, в яких коливання температури і вологості повітря не суттєво відрізняється від коливань на відкритому повітрі, а також в середині комплектних виробів призначених для експлуатації на відкритому повітрі за умови відсутності прямого впливу сонячного випромінювання та атмосферних опадів, в наступних умовах:

- висота над рівнем моря − не більше 1000 м;

- відносна вологість повітря не більше 98 % при 30 °С;

- верхнє робоче значення температури, навколишнього повітря − плюс 50 °С;

- нижнє робоче значення температури навколишнього повітря − мінус 45 °С;

- навколишнє середовище - вибухобезпечне, яке не містить пилу, хімічно активних газів і пари в
концентраціях, що руйнують покриття металів та ізоляцію;

- положення трансформаторів в просторі - будь-яке.

Клас нагрівостійкості ізоляції – В по ДСТУ EN 61869-1:2017.

Клас займистості трансформаторів відповідає групі НВ40 за ДСТУ EN 60695-11-10.

Однофазні трансформатори трифазної групи відповідають вимогам ДСТУ EN 61869-1:2017, ДСТУ EN 61869-3:2017, ГОСТ 1983-2015.

  • Найменування параметру Значення параметру
  • Найвища напруга обладнання, Um, [kV] 7,2; 12
  • Номінальна лінійна напруга, Un, [kV] 6; 6,3; 6,6; 10; 10,5; 11
  • Гранична термічна потужність, [VA] 1200, 1500, 1800