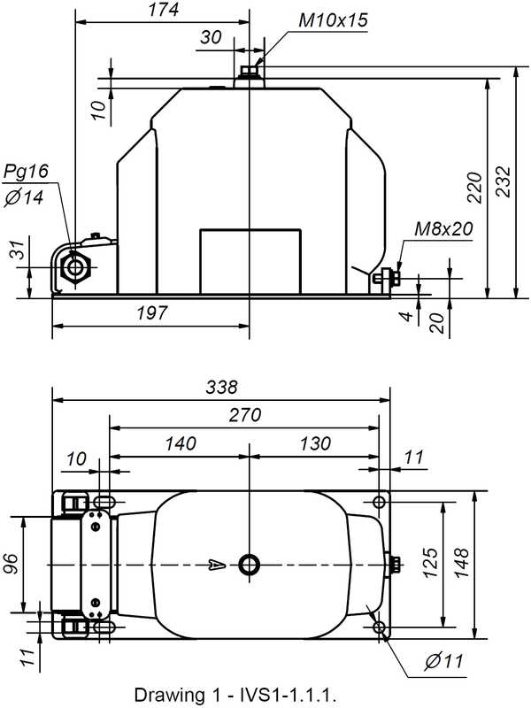
IVS1(F)
Przekładniki napięciowe IVS przeznaczone są dla przekazania sygnałów informacji urządzeniom pomiarowym, urządzeniom do zabezpieczenia, sygnalizacji i sterowania.
Przekładniki mogą być ustalone w suchym pomieszczeniu, gdzie środowisko nie grozi wybuchem, jest wolne od kurzu, chemicznie aktywnych gazów i pary w koncentracjach, rujnujących powlokę metali i izolacji.
Robocza wartość temperatury powietrza otoczenia od –45 °C do +50 °C.
Wysokość montażu nad poziomem morza nie więcej niż 1000 m.
Wykonanie klimatyczne U, kategorii rozmieszczenia 2 wg GOST 15150.
Przekładniki spełniają DSTU EN 61869-1:2017, DSTU EN 61869-3:2017, GOST 1983-2015.
Przekładniki napięciowe IVS przeznaczone są dla przekazania sygnałów informacji urządzeniom pomiarowym, urządzeniom do zabezpieczenia, sygnalizacji i sterowania.
Przekładniki mogą być ustalone w suchym pomieszczeniu, gdzie środowisko nie grozi wybuchem, jest wolne od kurzu, chemicznie aktywnych gazów i pary w koncentracjach, rujnujących powlokę metali i izolacji.
Robocza wartość temperatury powietrza otoczenia od –45 °C do +50 °C.
Wysokość montażu nad poziomem morza nie więcej niż 1000 m.
Wykonanie klimatyczne U, kategorii rozmieszczenia 2 wg GOST 15150.
Przekładniki spełniają DSTU EN 61869-1:2017, DSTU EN 61869-3:2017, GOST 1983-2015.
- Nazwa parametru Wartość parametru
- Najwyższe napięcie dla sprzętu, Um, [kV] 3,6; 7,2; 12
- Liczba uzwojeń wtórnych 1, 2, 3
- Próbne napięcie częstotliwości przemysłowej, [kV] 10, 20, 28
- Napięcie znamionowe uzwojenia pierwotnego, Un, [kV] 3,0/√3; 3,3/√3; 3,6/√3; 6/√3; 6,3/√3; 6,6/√3; 10/√3; 10,5/√3; 11/√3
- Napięcie znamionowe głównego uzwojenia wtórnego, [V] 100/√3; 110/√3; 120/√3
- Napięcie znamionowe dodatkowego uzwojenia wtórnego, [V] 100; 110; 120; 100/√3; 110/√3; 120/√3; 100/3; 110/3; 120/3
- Moc znamionowa głównego uzwojenia wtórnego w klasie dokładności, [VA/cl] 25/0,2; 50/0,5; 100/1; 150/3
- Moc znamionowa dodatkowego uzwojenia wtórnego w klasie dokładności, [VA/cl] 150/3P; 150/6P
- Cieplna moc graniczna, [VA] 400; 500; 630