Ukraine, 49038, Dnipro, 68 Kniazia Yaroslava Mudroho str.

TCRD2

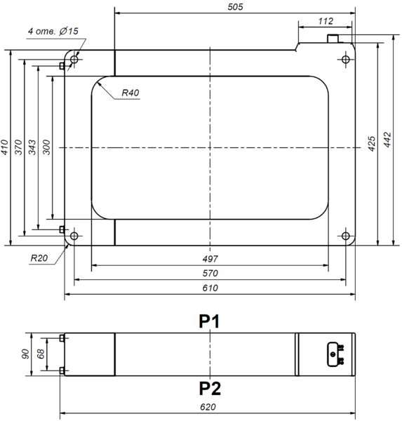
Separable zero sequence current transformer TCRD2.

Transformers are designed to operate under the following conditions:

- height above sea level - no more than 1000 m;

- relative air humidity not more than 98% at 30 ° С;

- the upper working value of the ambient air temperature - plus 50 ° С;

- the lower operating value of the ambient air temperature - minus 40 ° С;

- environment - explosion-proof, not containing dust, chemically active gases and vapors in concentrations that destroy metal coatings and insulation (type II atmosphere in accordance with GOST 15150-69);

- the position of the transformers in space - any.

Compare

Separable current transformers TCRD2 are designed to transmit a zero sequence current signal, which occurs when individual cores of a three-phase cable are closed to ground, to equipment of relay protection systems in complete switchgears (KRU) at power facilities.

The current transformers are installed on a three-phase cable.

The transformers are designed to work with current relays and microprocessor-controlled relay protection circuits.

It is possible to use transformers to measure the current strength in individual phases.

Transformers are manufactured in climatic version U, location category 2 for indoor use (volumes).

It is allowed to operate transformers outside the premises, under sheds, as well as built-in inside complete products of category 1 in accordance with GOST 15150-69.

Transformers are designed to operate under the following conditions:

- height above sea level - no more than 1000 m;

- relative air humidity not more than 98% at 30 ° С;

- the upper working value of the ambient air temperature - plus 50 ° С;

- the lower operating value of the ambient air temperature - minus 40 ° С;

- environment - explosion-proof, not containing dust, chemically active gases and vapors in concentrations that destroy metal coatings and insulation (type II atmosphere in accordance with GOST 15150-69);

- the position of the transformers in space - any.

Heat resistance class of insulation - B according to DSTU EN 61869-1: 2017.

Flammability class of transformers corresponds to HB40 group according to DSTU EN 60695-11-10.

An example of a conventional designation of current transformers when ordering and in the documentation of another product.

Current transformer TCRD2-0.72 for a rated primary current of 100 A, a rated secondary current of 1 A and a rated load of 1 VA

Current transformer TCRD2-0,72-01.01.3-100 // 1-10P10-1.

  • Parameter name Parameter value
  • Highest voltage for equipment, Um, [kV] 0,72
  • Rated frequency, Fn, [Hz] 50
  • Accuracy limit factor, ALF 10
  • Transformation ratio and load cosφ=0,8, Ipr//Isr-S, [A//A-VA] 50//1-0,5; 100//1-1; 200//5-2,5; 300//1-5
  • Accuracy class 10P
  • Separable +