Ukraine, 49038, Dnipro, 68 Kniazia Yaroslava Mudroho str.

TCHD2-0,72

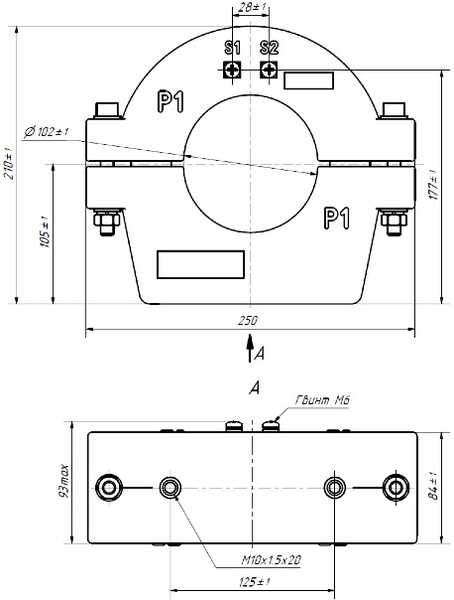
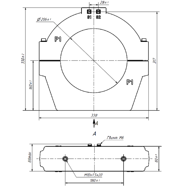
Residual current transformer of TCHD2 type is designed to supply protection from short circuit to earth of individual conductors of a three-phase cable by transforming zero-sequence currents arisen and installed on the cable.

The current transformers are installed on a three-phase cable.

The transformers are designed to work with current relays and microprocessor-controlled relay protection circuits.

It is possible to use transformers to measure the current strength in individual phases.

Transformers are intended for operation in rooms in which fluctuations in temperature and humidity do not differ significantly from fluctuations in the open air, as well as inside complete products intended for operation in the open air, in the absence of direct exposure to solar radiation and precipitation, under the following conditions:

-     altitude above sea level - not more than 1000 m;

-     relative humidity of air - not more than 98% at 30 ° С;

-     the upper operating value of the ambient air temperature is plus 50 ° C;

-     the lower operating value of ambient air temperature is minus 45 ° С;

-     the environment shall be non-explosive, containing no dust, reactive gases and vapors in concentrations that destroy metal coatings and insulation;

-     position of transformers in space - any.

Heat resistance class of insulation - B according to DSTU EN 61869-1: 2017.

Flammability class of transformers corresponds to HB40 group according to DSTU EN 60695-11-10.

An example of a conventional designation of current transformers when ordering and in the documentation of another product.

Current transformer TCHD2-0.72 for a rated primary current of 50 A, a rated secondary current of 1 A and a rated load of 0,5 VA

Current transformer TCHD2-0,72-33.10.3-50//1-10P10-0,5.

Compare

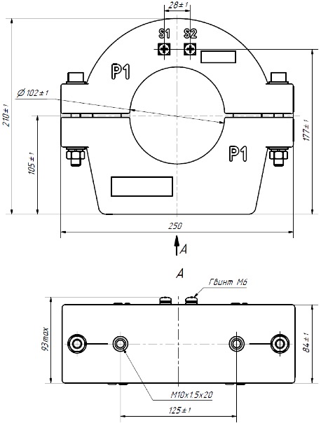
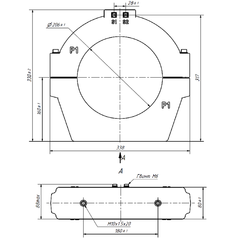
Residual current transformer of TCHD2 type is designed to supply protection from short circuit to earth of individual conductors of a three-phase cable by transforming zero-sequence currents arisen and installed on the cable.

The current transformers are installed on a three-phase cable.

The transformers are designed to work with current relays and microprocessor-controlled relay protection circuits.

It is possible to use transformers to measure the current strength in individual phases.

Transformers are intended for operation in rooms in which fluctuations in temperature and humidity do not differ significantly from fluctuations in the open air, as well as inside complete products intended for operation in the open air, in the absence of direct exposure to solar radiation and precipitation, under the following conditions:

-     altitude above sea level - not more than 1000 m;

-     relative humidity of air - not more than 98% at 30 ° С;

-     the upper operating value of the ambient air temperature is plus 50 ° C;

-     the lower operating value of ambient air temperature is minus 45 ° С;

-     the environment shall be non-explosive, containing no dust, reactive gases and vapors in concentrations that destroy metal coatings and insulation;

-     position of transformers in space - any.

Heat resistance class of insulation - B according to DSTU EN 61869-1: 2017.

Flammability class of transformers corresponds to HB40 group according to DSTU EN 60695-11-10.

An example of a conventional designation of current transformers when ordering and in the documentation of another product.

Current transformer TCHD2-0.72 for a rated primary current of 50 A, a rated secondary current of 1 A and a rated load of 0,5 VA

Current transformer TCHD2-0,72-33.10.3-50//1-10P10-0,5.

  • Parameter name Parameter value
  • Highest voltage for equipment, Um, [kV] 0,72
  • Rated secondary current, Isn, [A] 1
  • Rated frequency, Fn, [Hz] 50
  • Accuracy limit factor, ALF 10
  • Transformation ratio and load cosφ=0,8, Ipr//Isr-S, [A//A-VA] 50//1-0,5; 60//1-0,5; 100//1-1; 200//1-2,5; 300//1-5
  • Accuracy class 10P
  • Separable +